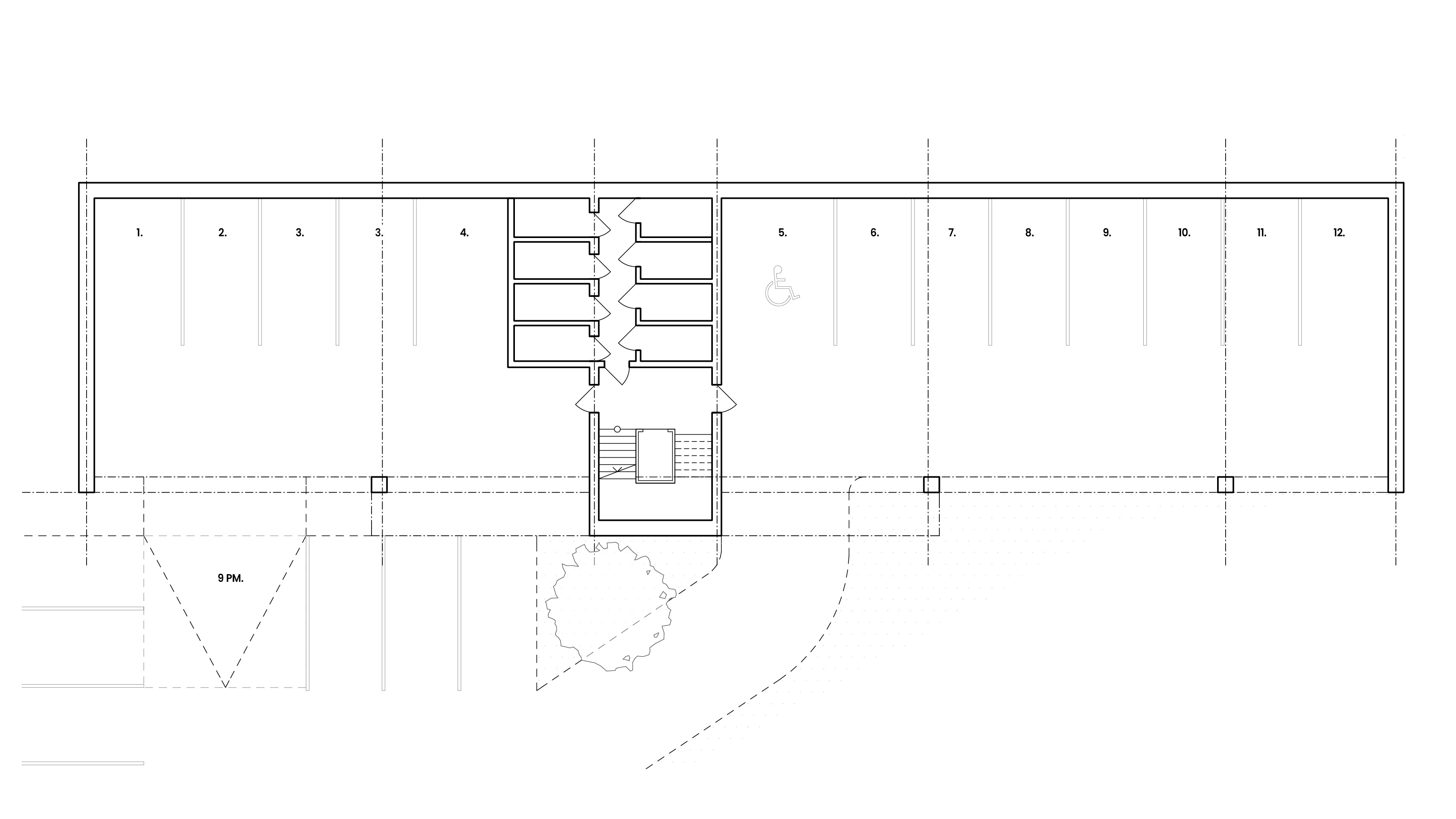
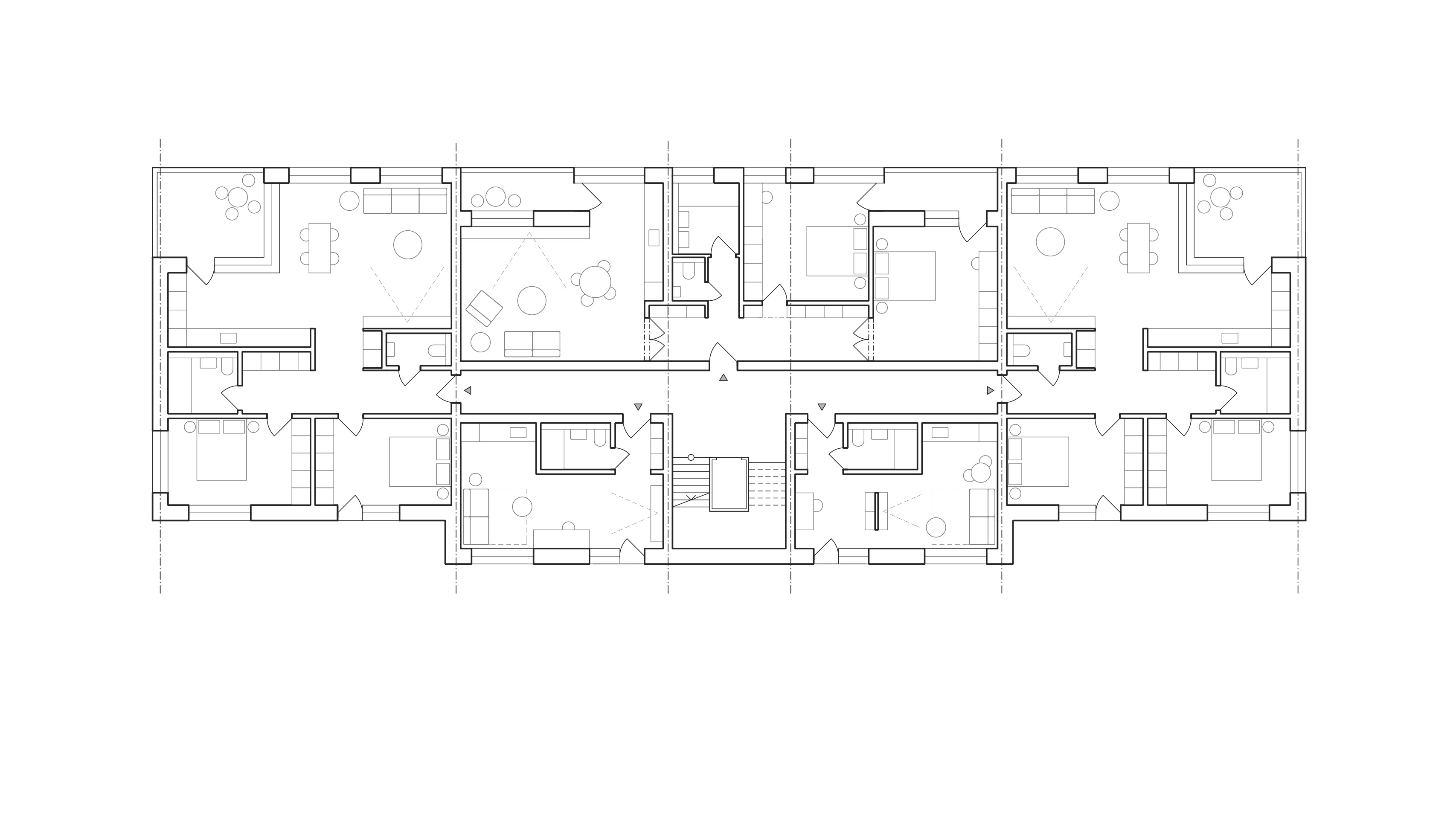
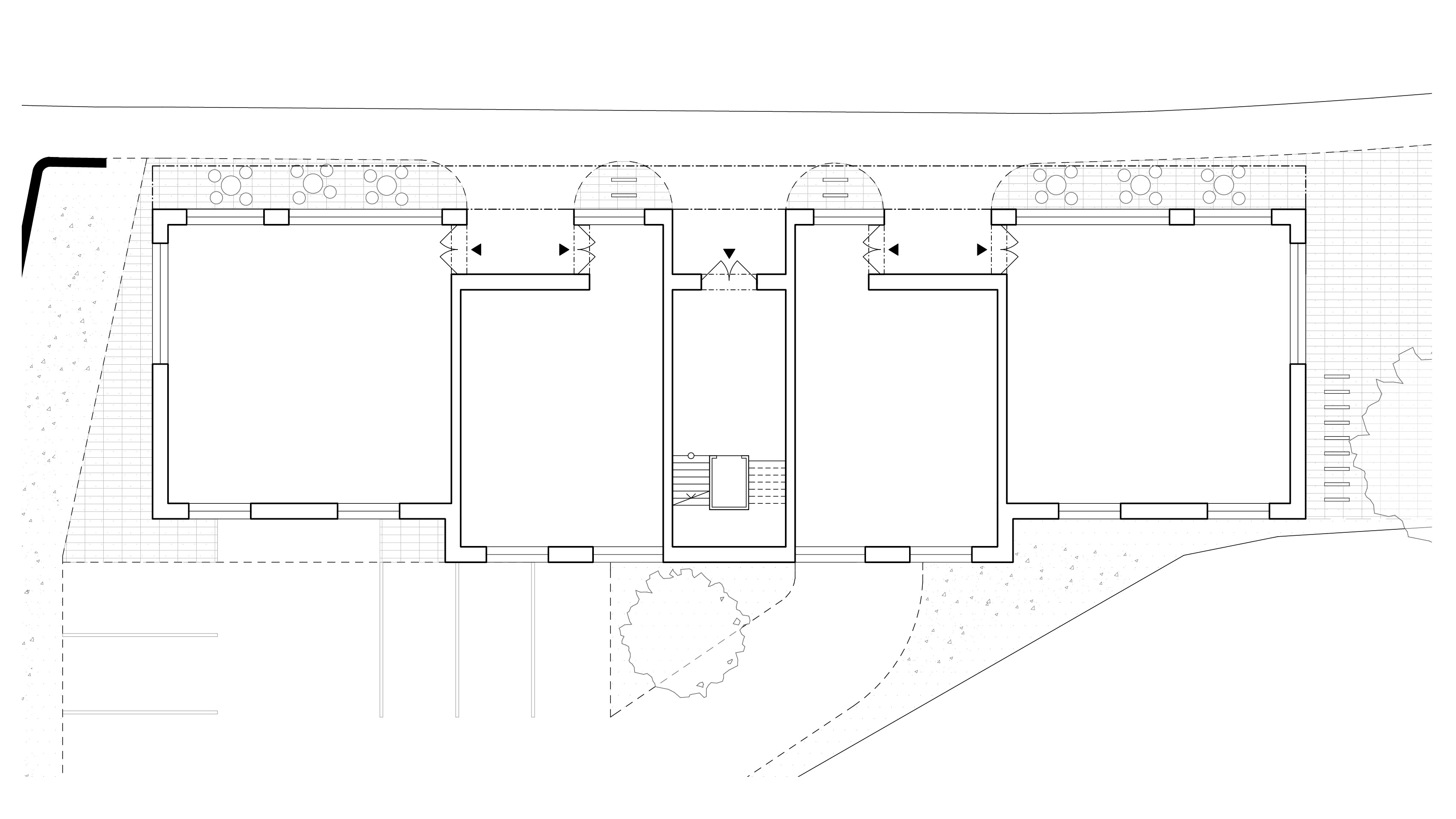
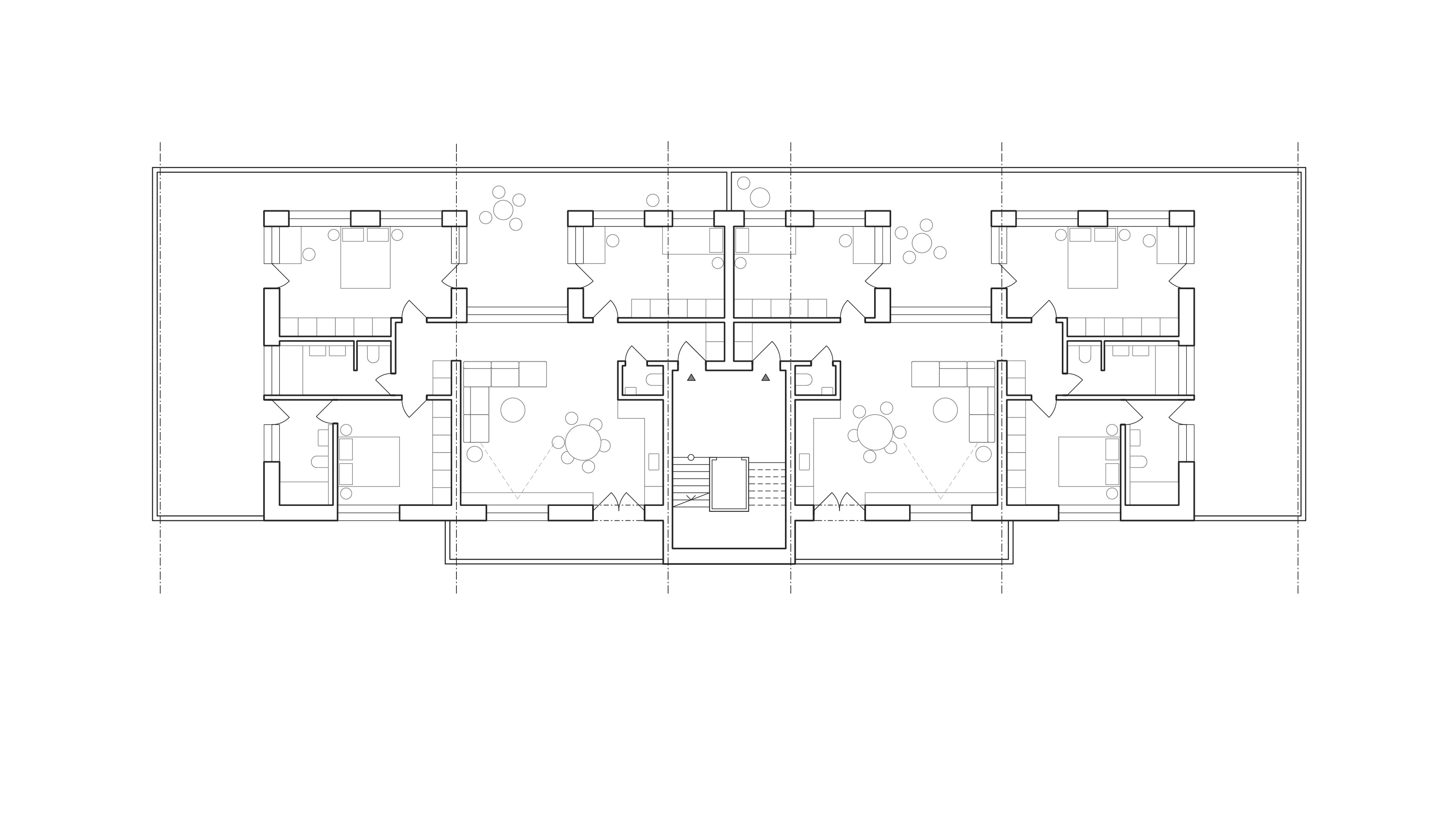
Architect

Kysuce I.

Year:
01/2024
Location:
Krásno nad Kysucou
Authors:
Oliver Hacaj, Marek Malček