1/6
Hasičská Zbrojnica
- Year:
- 04/2019-2021
- Location:
- Bíňovce, SK
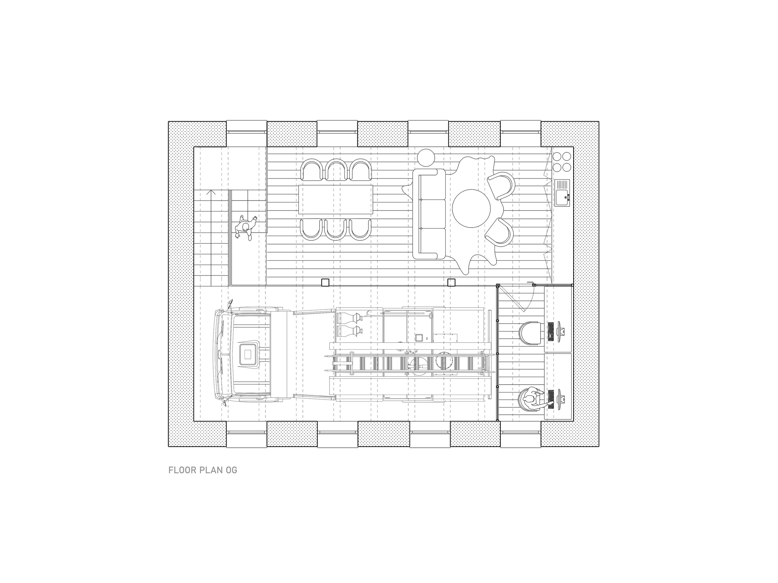
Rekonštrukcia schátralej sýpky z r. 1857 na požiarnu zbrojnicu pre miestny dobrovoľný hasičský zbor.
Vyčistený priestor, vzdušnosť, materialita, komunita.
1/6
Rekonštrukcia schátralej sýpky z r. 1857 na požiarnu zbrojnicu pre miestny dobrovoľný hasičský zbor.
Vyčistený priestor, vzdušnosť, materialita, komunita.