Architect

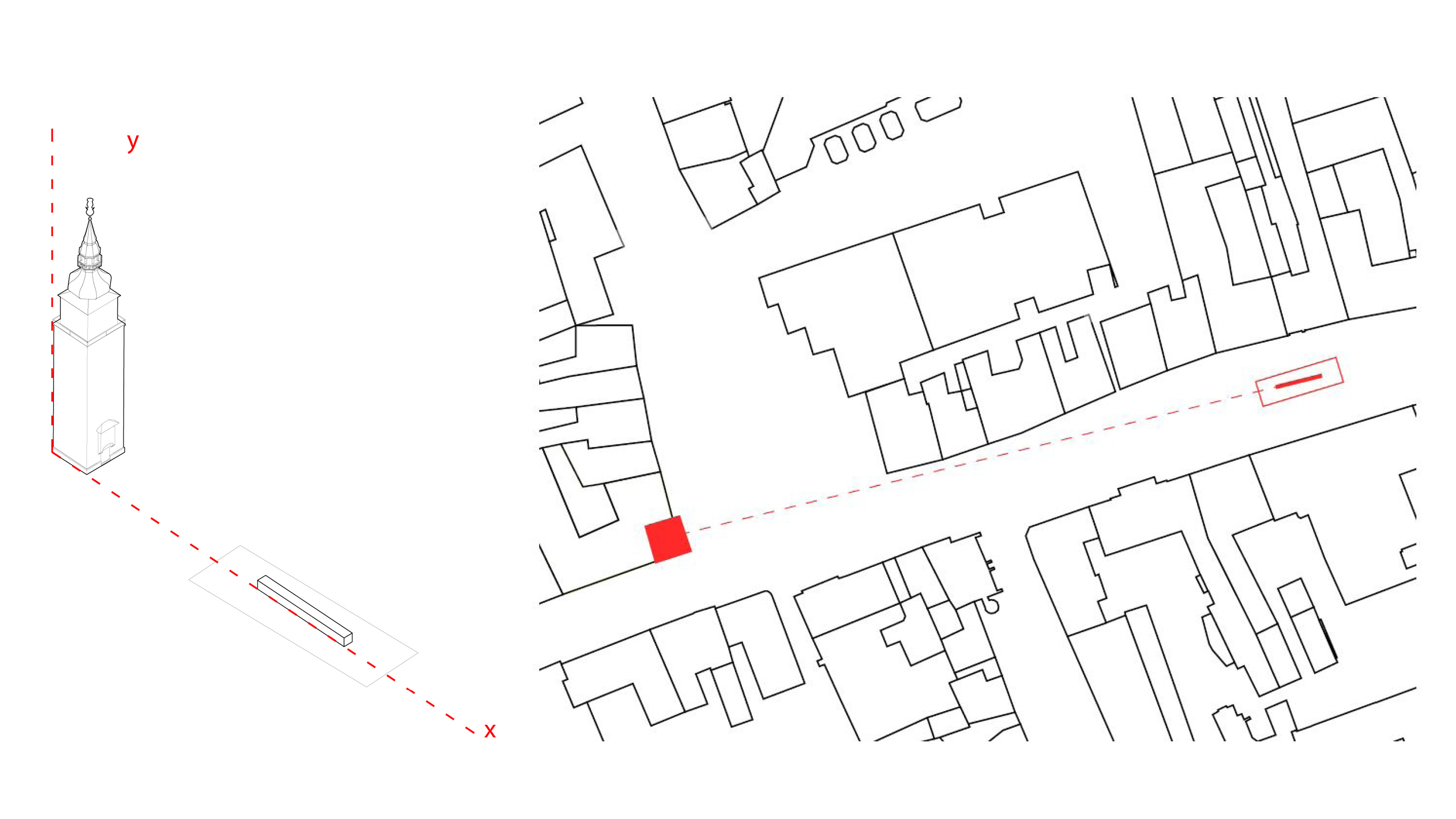
Fontána I. / II.

Year:
02/2024
Location:
Trnava
Authors:
Oliver Hacaj, Denis Zeman
Collaboration:
Marek Malček

Súťažné návrhy novej fontány na pešej zóne v Trnave.