1/5
Byt PS-82
- Year:
- 02/2022
- Location:
- Trnava, SK
- Authors:
- Oliver Hacaj
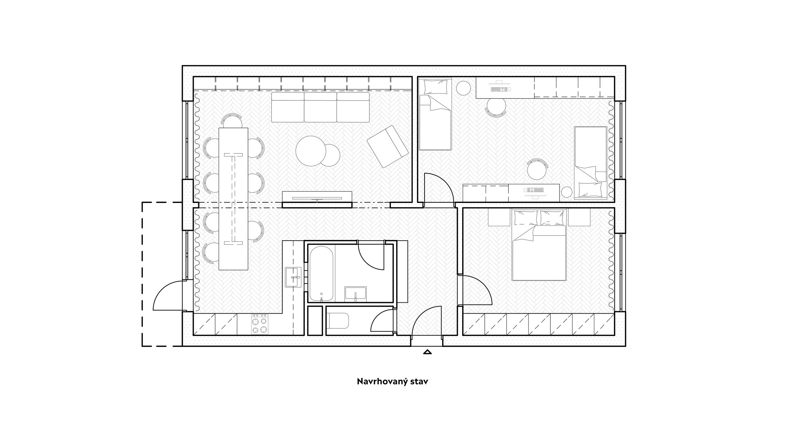
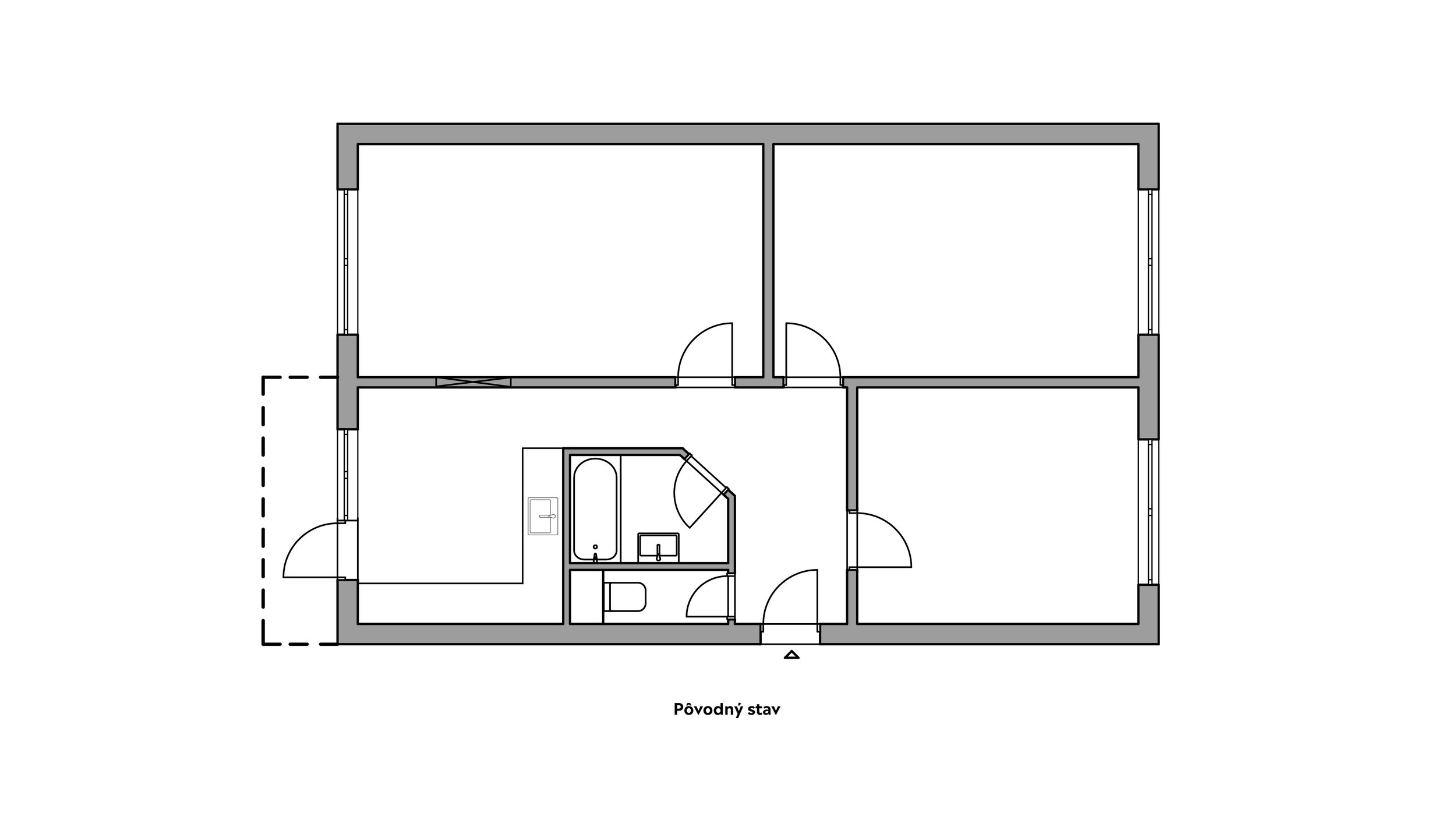
Návrh bytu v typickom panelovom dome z 80. rokov. Kuchyňu a obývaciu izbu dispozične prepájame rozšírením otvoru v mieste pôvodných, zamurovaných dverí.
Vzniká vzdušný priestor s masívnym, dlhým stolom - centrom celého bytu.
Pre návštevy, kamarátov, rodinu, deti…